Flower shop 2
Flower shop 01
Flower shop 03
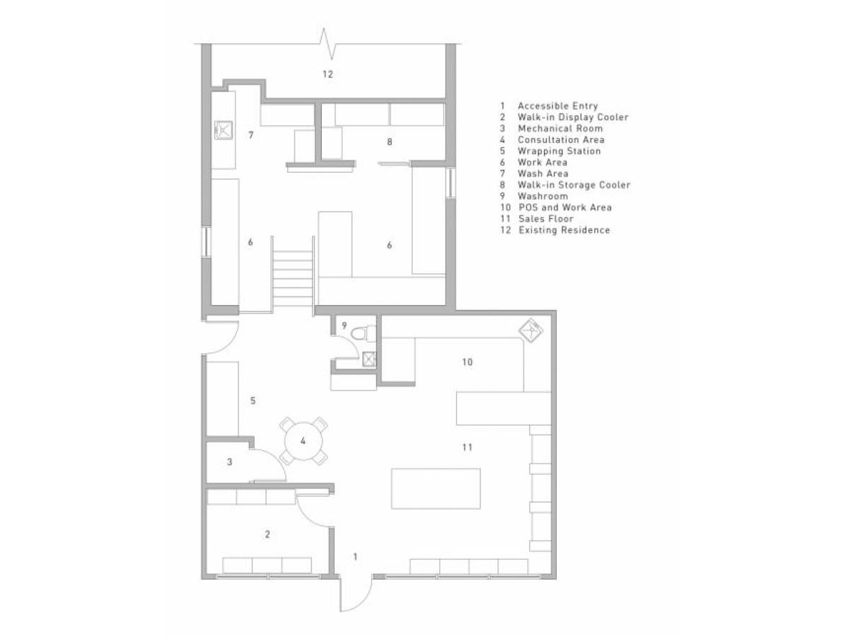
Floor plan
Signage Under Construction
Construction process
Construction Process Detail

Solving Problems through Collaboration:

Designed by Sequence Interior Design, Beyond Flowers faced a challenging set of parameters when upgrading an existing commercial tenant unit attached to an existing residence. Architects At Play was asked to provide a Building Code Analysis for the design and to produce an Alternative Solution that would satisfy the City of Winnipeg’s requirements.

The process required Architects At Play to work hand-in-hand with Beyond Flowers, Sequence Interior Design, Durango Construction, and the City of Winnipeg to come up with a solution that satisfied the functional requirements of the flower shop with the safety requirements of the Manitoba Building Code. The final solution is a product of creativity and compromise, where the work areas are spread over two floors, separated from the residence. Upgrades include a new barrier-free entry, two walk-in coolers for display and storage, a refreshed front façade, new stairs with guard and handrails, and a new POS area.