Main perspective
Front perspective
View from street
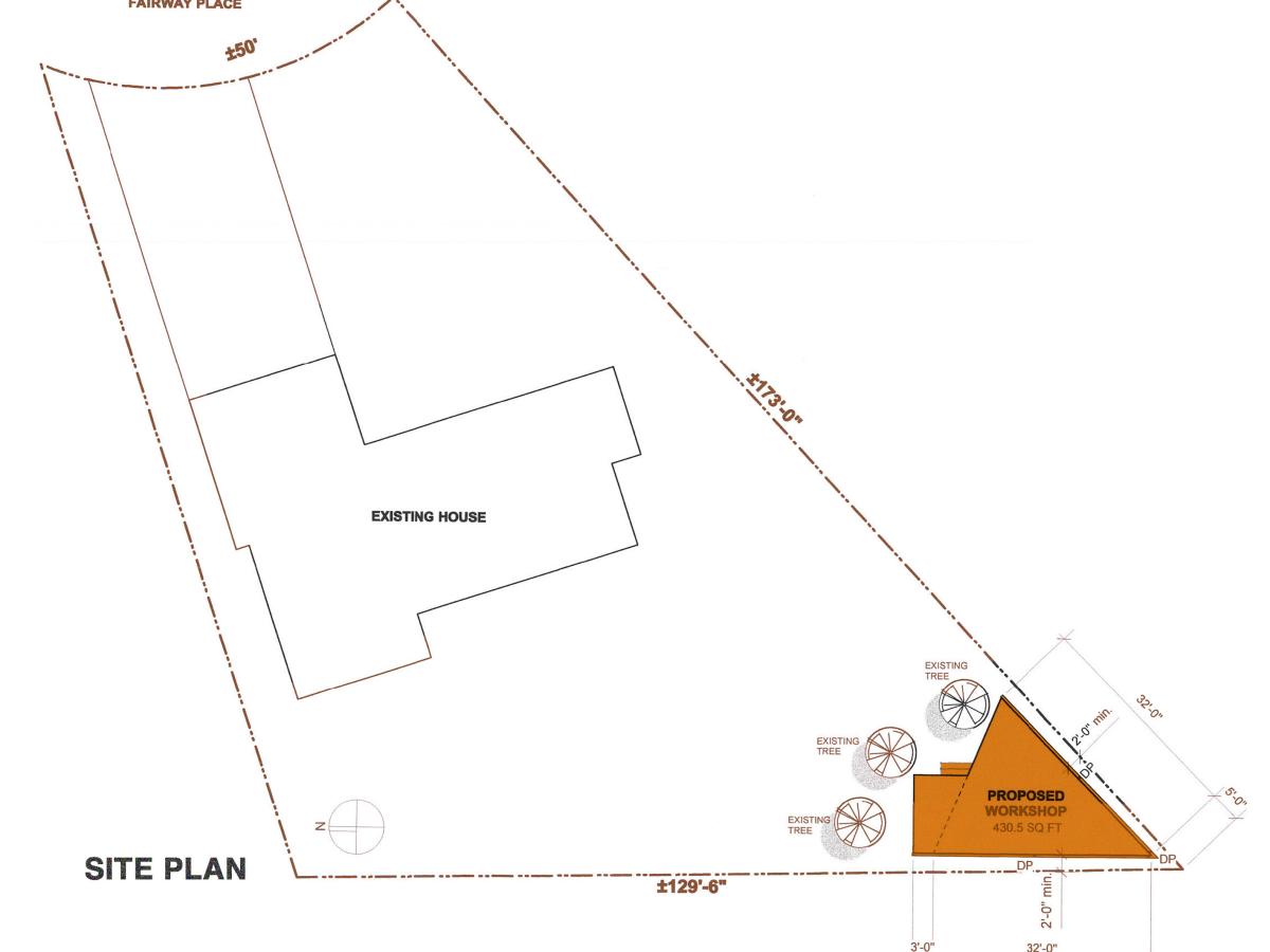
Site plan 1
Section elevation
Site plan 2

Working Away

This backyard workshop was constructed at a home near the Assiniboine River. The triangular lot informed the building's form, which tucks away at the edge of the yard to maximize yard space, while remaining accessible. The shop includes ample work benches, a table-saw and storage cabinet.