Perspective of Renovation
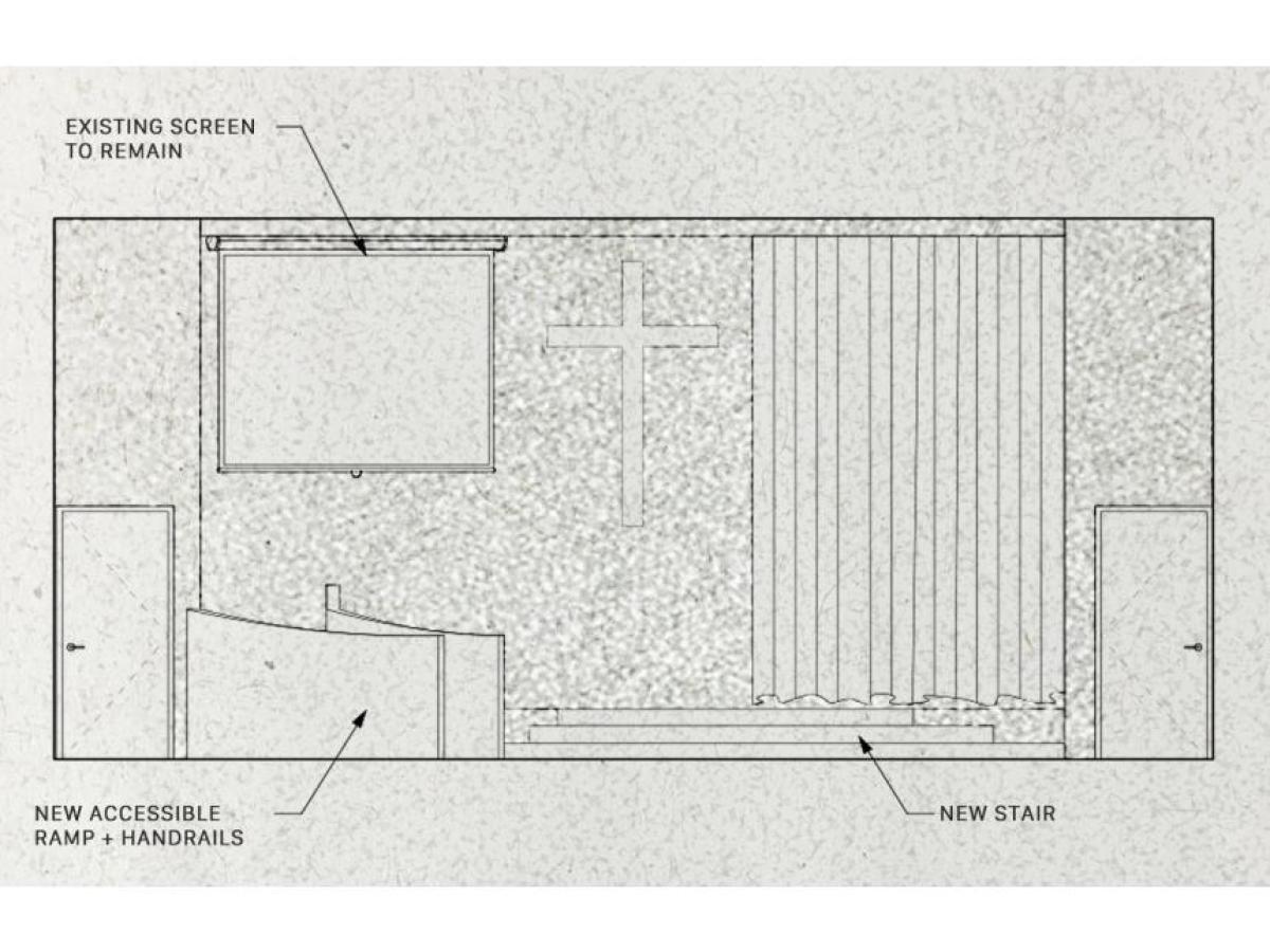
Renovation Elevation
Key Plan
Enlarged Renovation Plan
Existing Plan of Church, Drafted in 1983

Accessing Community

This collaboration with re:Design aimed to improve accessibility while maximizing space within the church's stage area. The previously orthogonal stage was replaced with a curved stage, accessed by a perimeter ramp. The stage's edge consists of three wide steps, creating bleacher-style platforms for performance.